Neil Armstrong
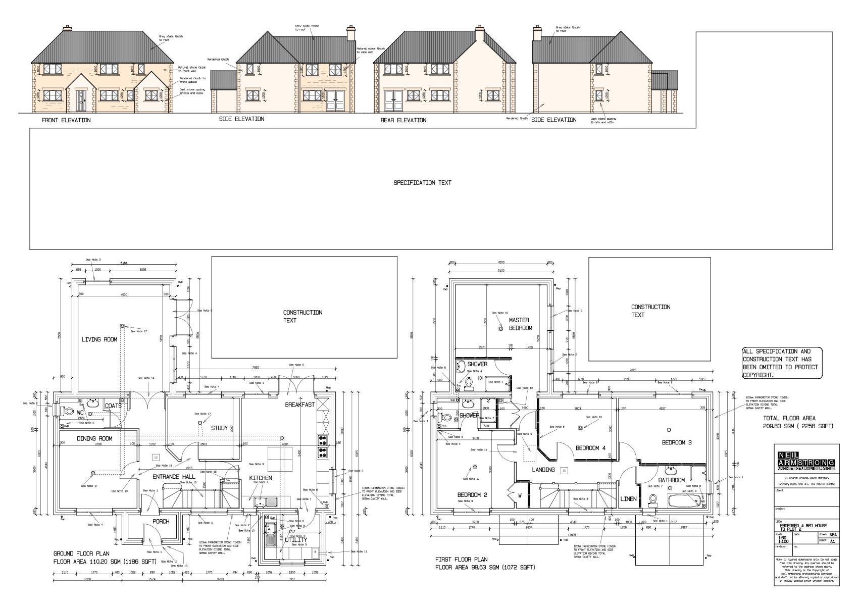
New build design projects in Swindon
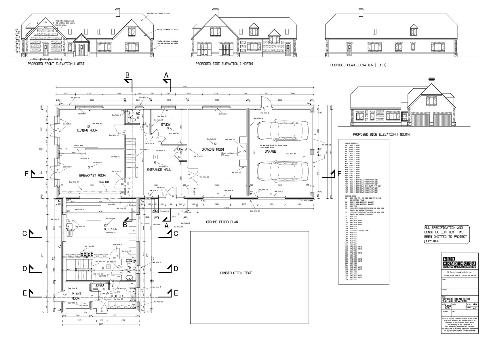
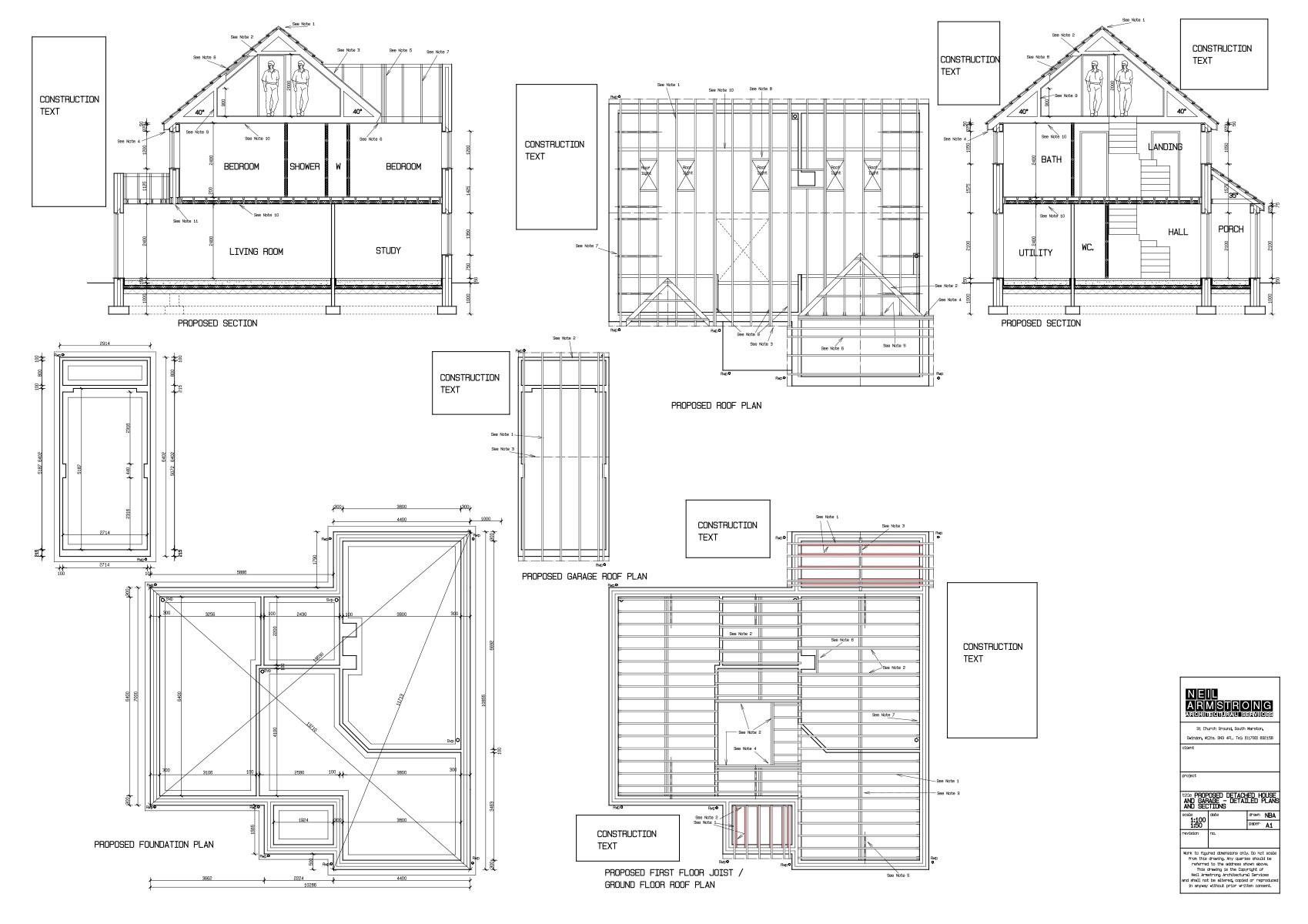
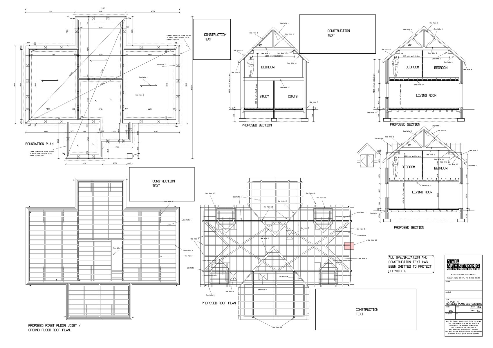
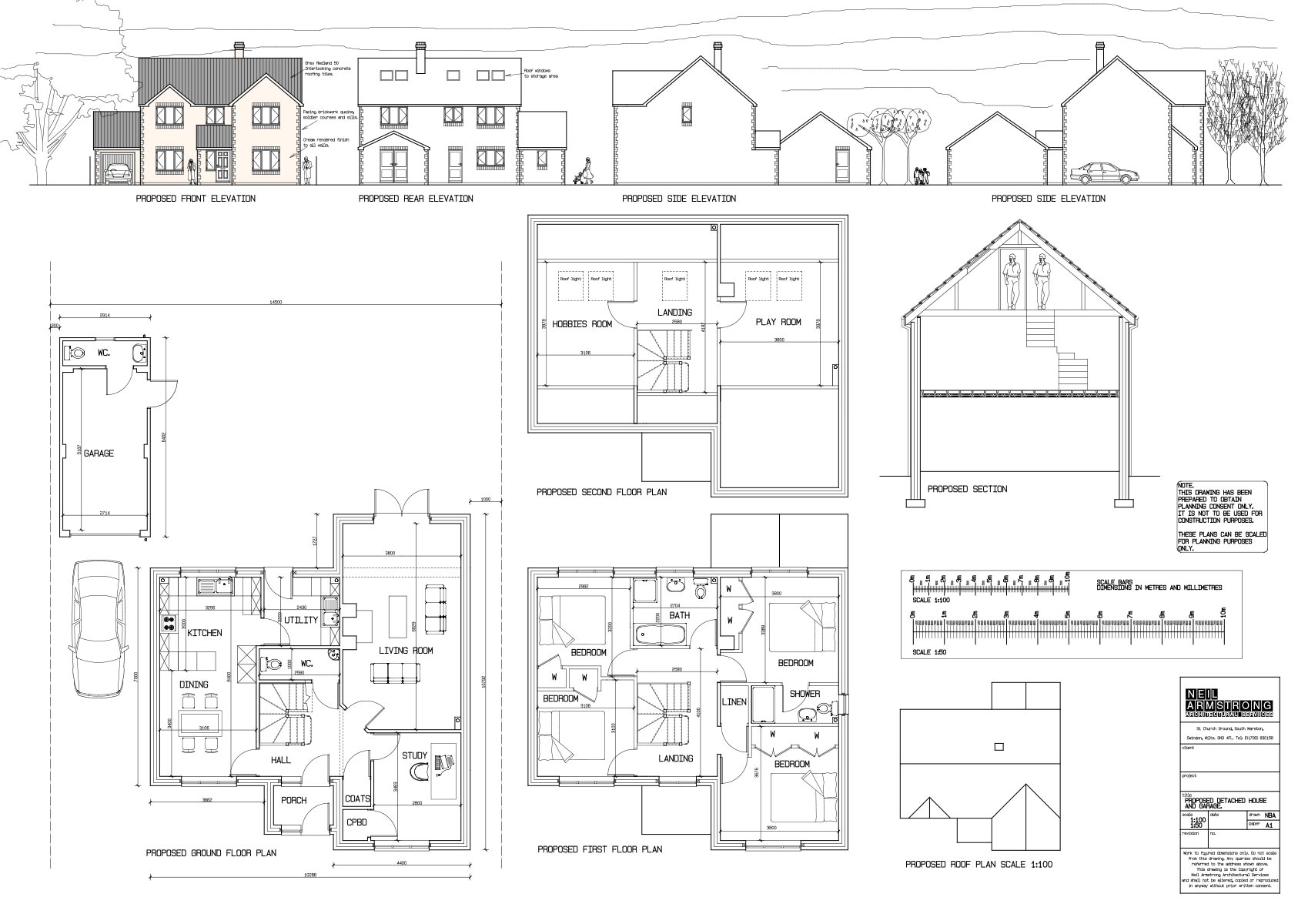
Neil B Armstrong has a wealth of experience in planning and designing new build developments across Swindon.
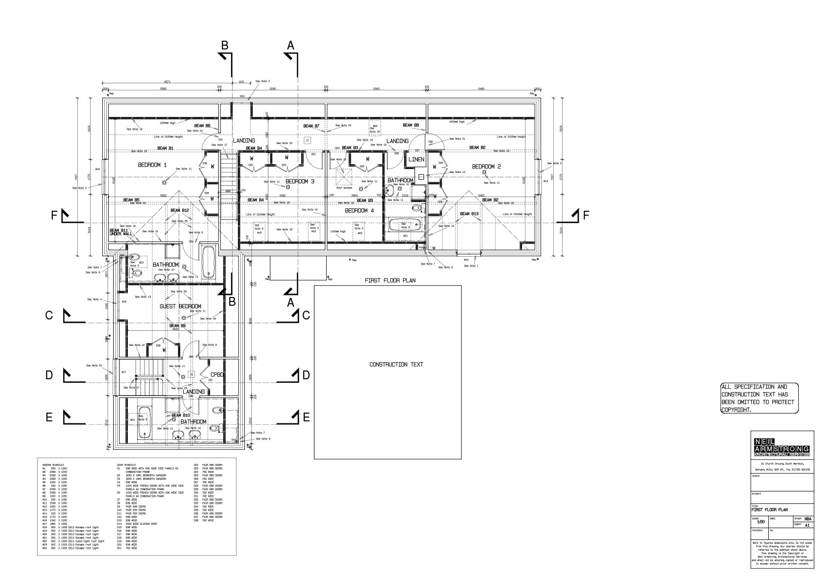
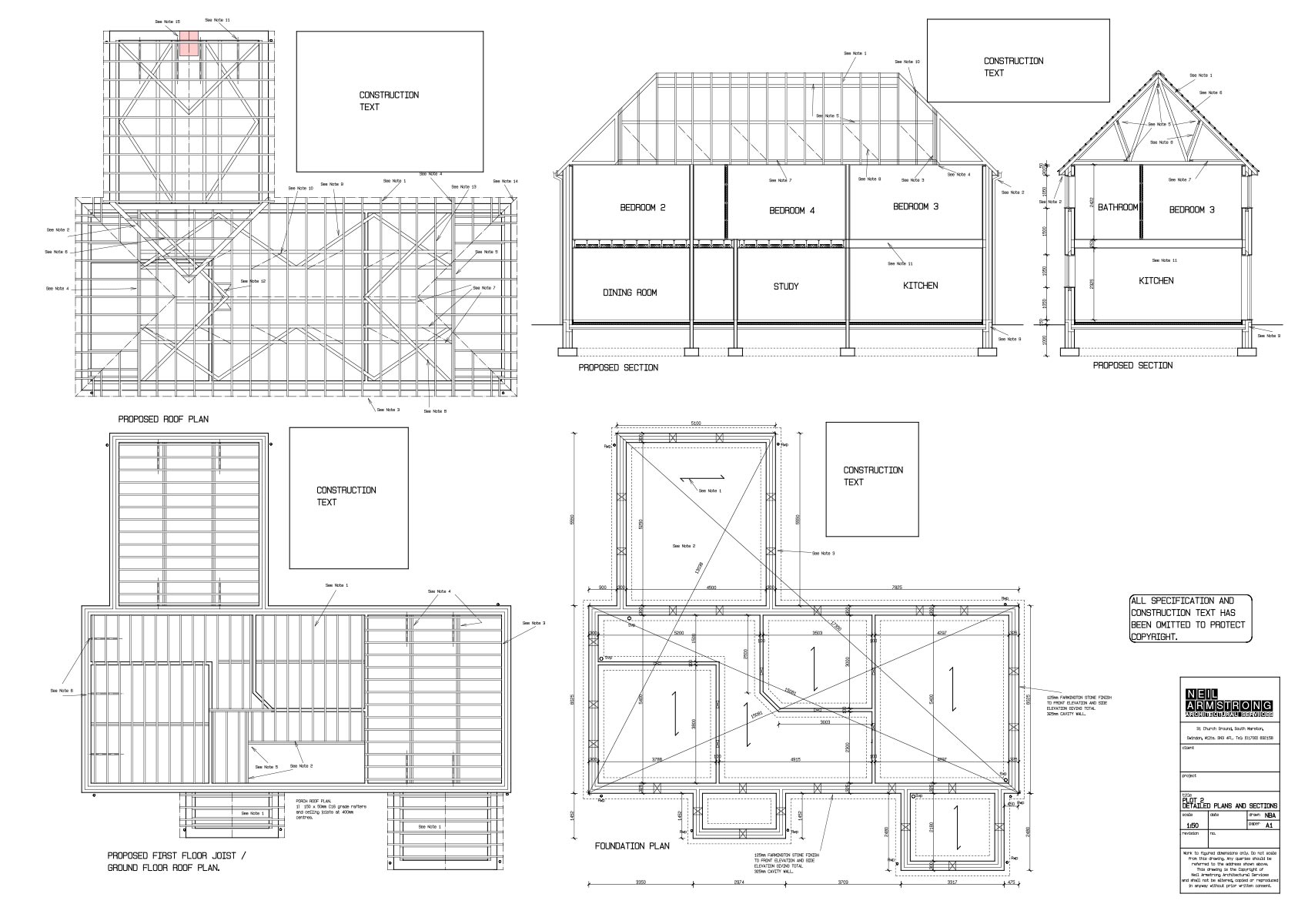
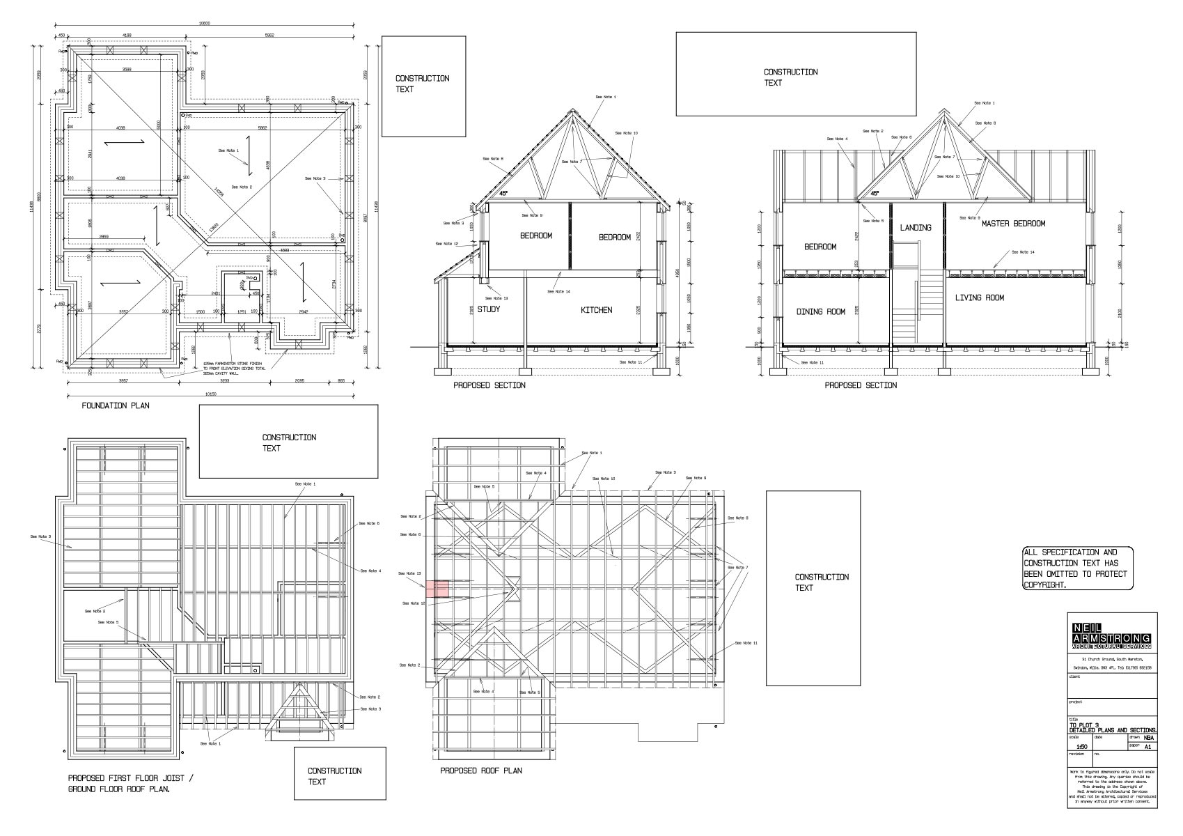
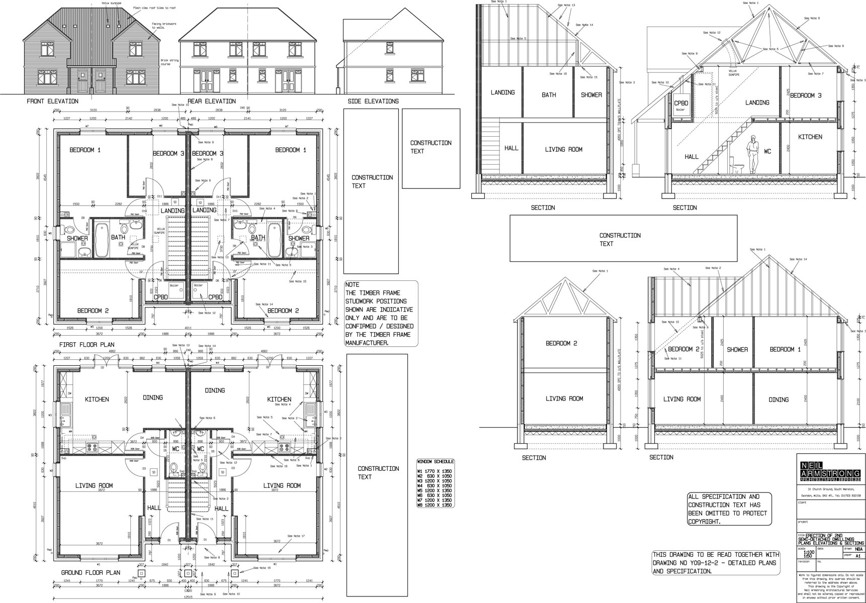
Case studies – new builds
With years’ of experience in the business, I am proud of the work I have done for my clients. With my knowledge and expertise, you can rest assured that I can handle any architectural project, no matter the size or nature of the project. I will always ensure the job is completed efficiently and within budget. Contact me today for expert advice.





















