Neil Armstrong
Stunning house extension designs carried out by a professional in Swindon
With years’ of experience in the business, Neil Armstrong has the knowledge and expertise to carry out planning and design on home extensions & new builds in the Swindon area. For further enquiries, get in touch.
Expert knowledge in building design and planning
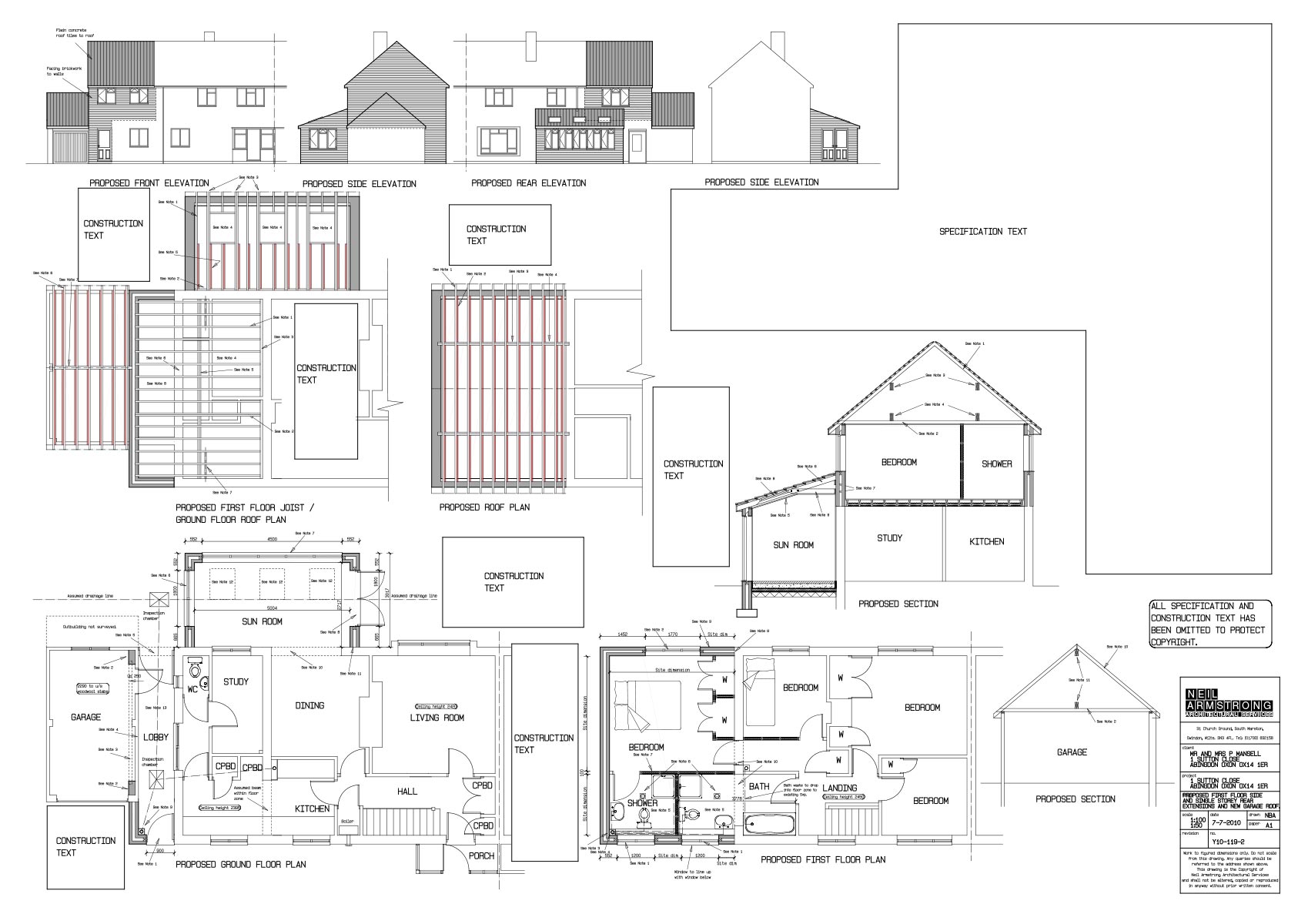
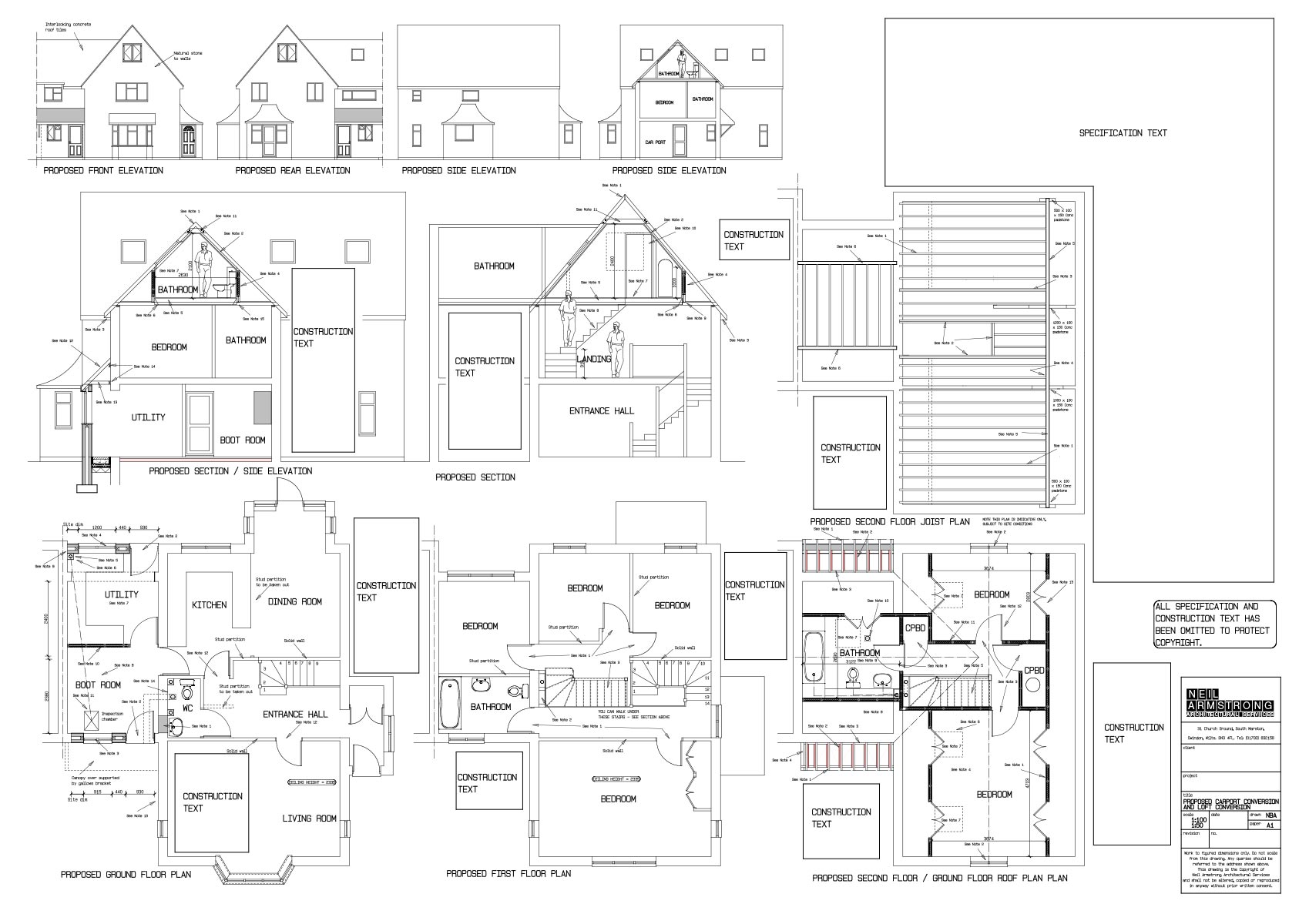
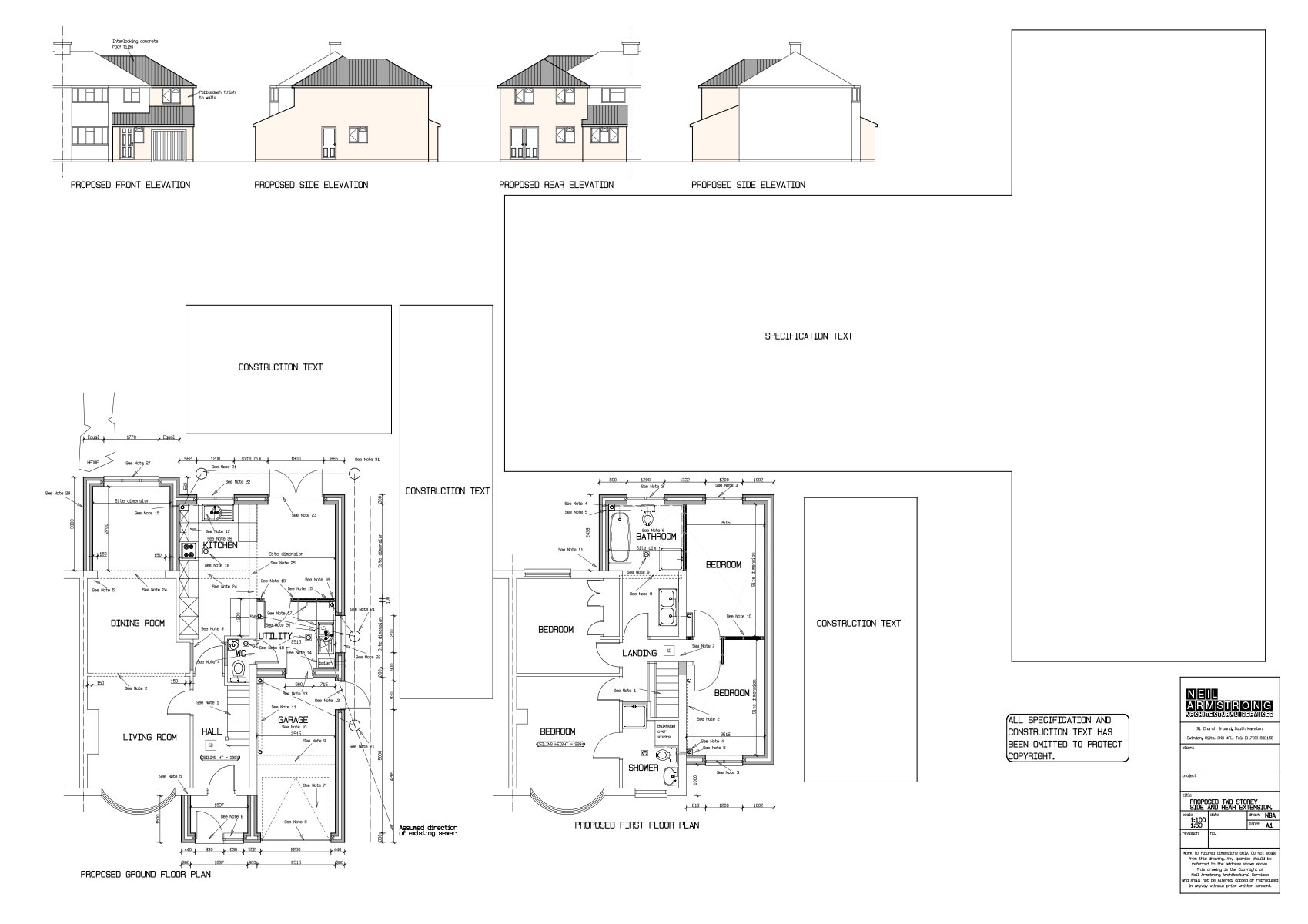
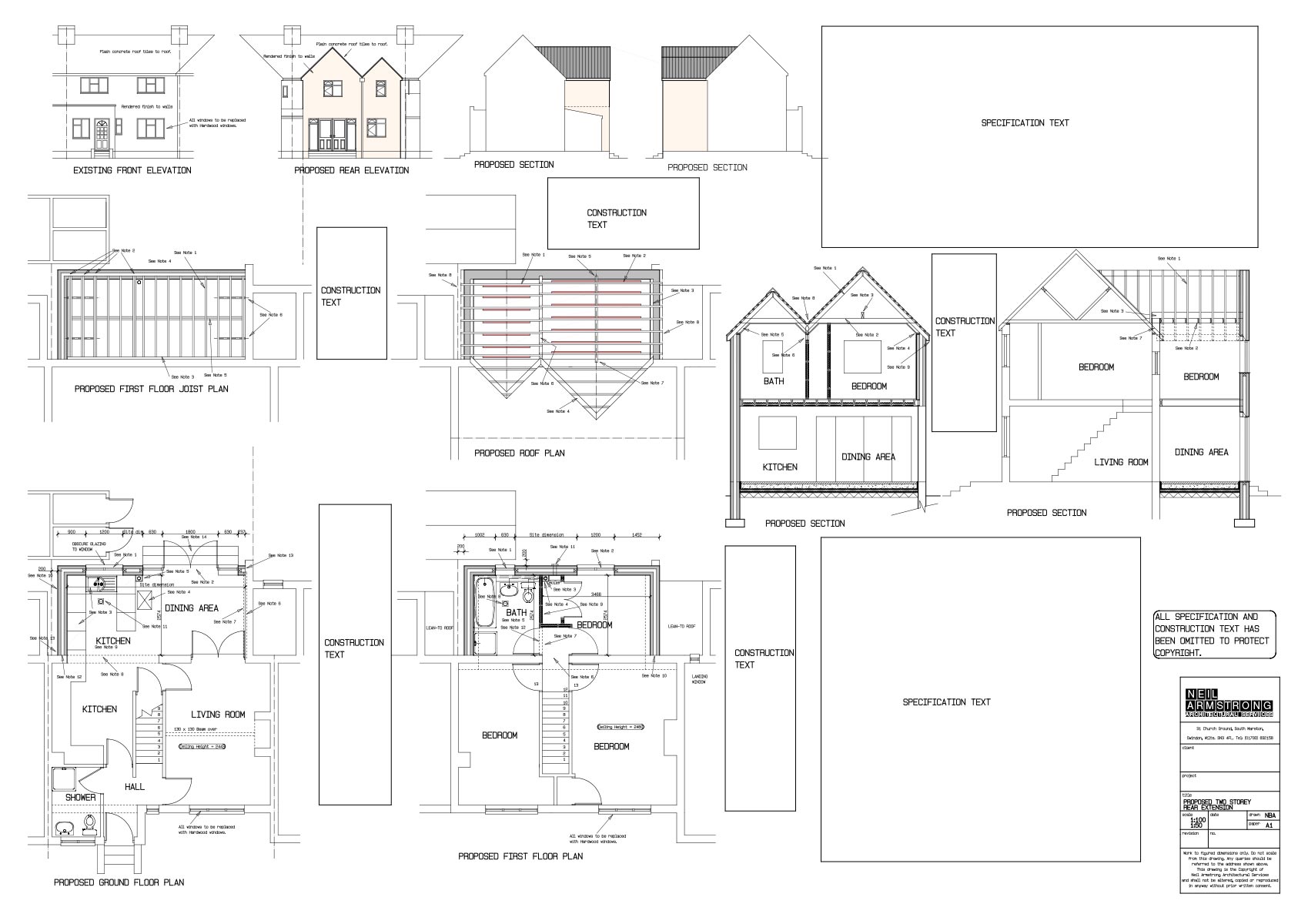
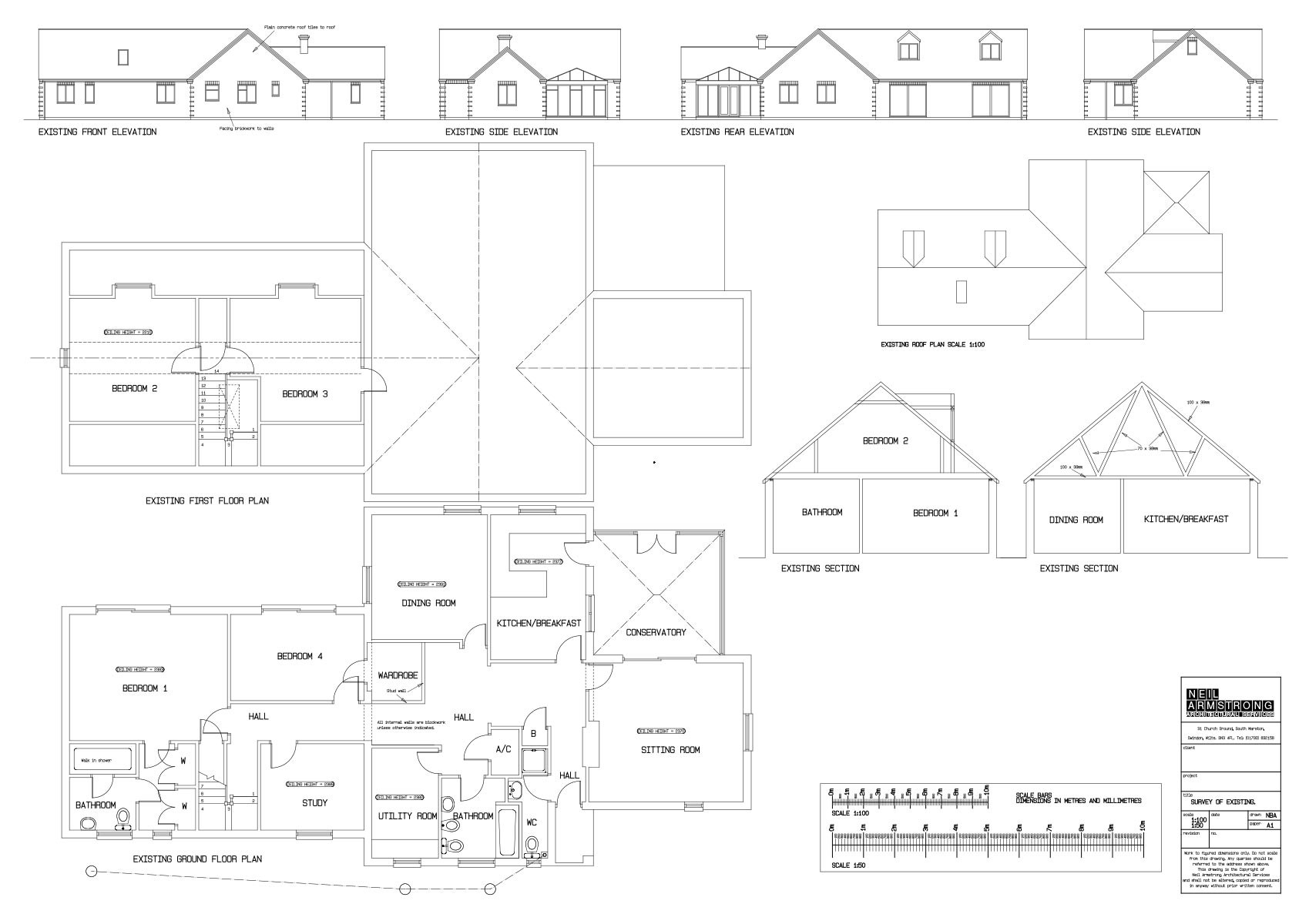
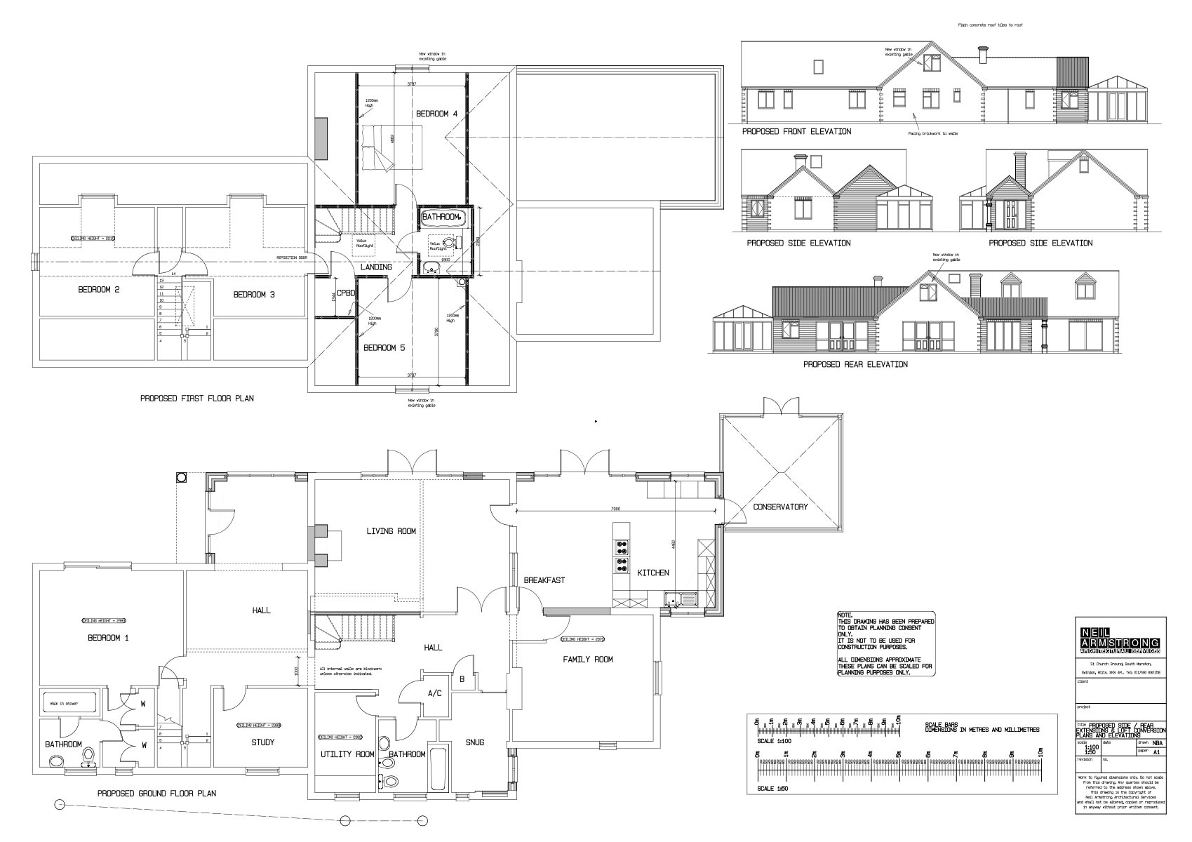
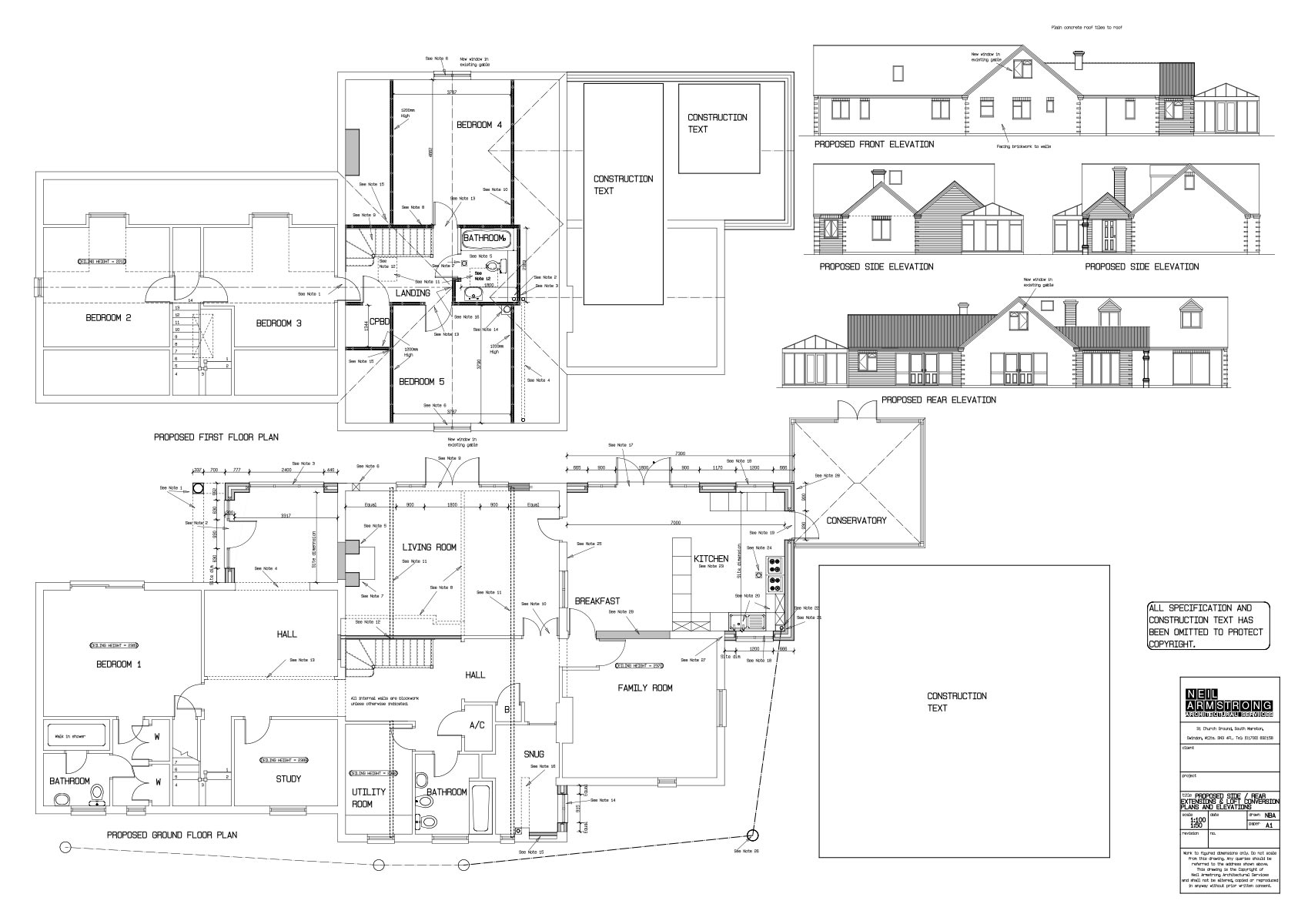
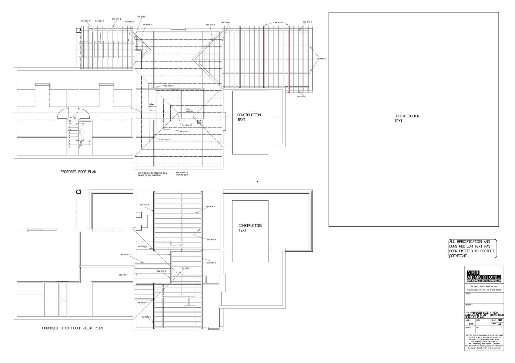
I have a wealth of experience designing home extensions, loft conversions; new build homes, as well as submitting planning and building regulation applications. I have detailed knowledge of the limitations and scope of the planning rules, and construction and building regulations.
Though I work on large contracts such as estate development designs, please do not hesitate to contact me regarding smaller projects such as home extensions or barn conversions.





















