Blog
How Do New Build Design Plans Impact Energy Efficiency and Costs?
When planning a new home, design decisions directly impact energy efficiency and long-term costs. From insulation and window placement to heating systems and building materials, every choice influences how much energy the home consumes and how much you spend on utilities.
How Architectural Designers Approach Open-Plan Living?
Open-plan living shapes how people cook, relax, work, and connect every day. However, removing walls never guarantees better living. Smart design decisions create the real difference. A skilled architectural designer in the Cotswolds begins with people, and not just plans.
How is Modern Architecture Modifying with Technological Advances?
by neilbarmstrong | Dec 20, 2023 | Architectural Services Architecture is an ever-modifying process, like any creative form. It always has room for improvement, where the designers can apply their liberty of creating a new design. As a result,...
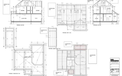
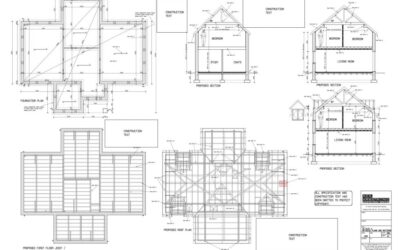
Significance of Architectural Drawings for Construction Projects
Architectural drawings are visual representations of the design concept of a construction project. They act as a tool of communication between the homeowner, architect, and construction professionals. Accurate construction drawings involve the technical specifications...
Home Extension to Your Property: What Makes It a Smart Move?
by neilbarmstrong | Jan 27, 2025 | Architectural Services Are you looking for ways to accommodate your growing family or improve your home’s functionality? Whatever it is, a property extension will serve your objectives. Contact experts...
Architectural Design Services – How Can An Architect Transform Home Renovation Projects?
Are you planning a home renovation? It is likely to be an exciting project for you. Reimagining your space and improving its functionality brings joy and happiness to homeowners. However, whatever you imagined for your property might not work out when you renovate it....
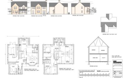
How Architectural Design Can Affect Energy Efficiency in New Builds?
Thinking about building a new home or property? The architectural choices you make for a new build can influence more than just the aesthetic appeal. The architecture can also play a crucial role in determining how efficiently the space uses energy daily. Naturally,...
What Are The Mistakes Homeowners Make When Choosing A Residential Architect?
Are you looking forward to renovating your home? If yes, then you need to choose a reliable residential architect who has a fair reputation in the market. A reputed residential architect translates the vision into reality and enhances the curb appeal of your house....
Hiring an Architectural Designer Can Cut Your Costs
Are you building a home and avoiding hiring an architectural designer due to budget issues? Contrary to your belief, hiring an architect can help you cut down costs. Whether by avoiding legal issues or making it sustainable, it is an investment in your...
Architectural Designer in Cotswolds – More Than Just Blueprints
When most people think of hiring an architectural designer, they imagine someone who is engrossed with blueprints of the construction project and busy sketching floor plans and layouts. While this is the most important job of an architectural designer, they also have...









